ELITE IMOBILIARE

Prin utilizarea acestui site, sunteți de acord cu utilizarea cookie-urilor pentru analize, conținut personalizat și reclame.Aflați mai multe

Vânzare

Teren în zona partia de schii

FELEACU, Alta Zona (partia de schii)

ID: 105651

308.000

Caracteristici


Camere

2800 m2

Băi

-

Detalii

Descriere

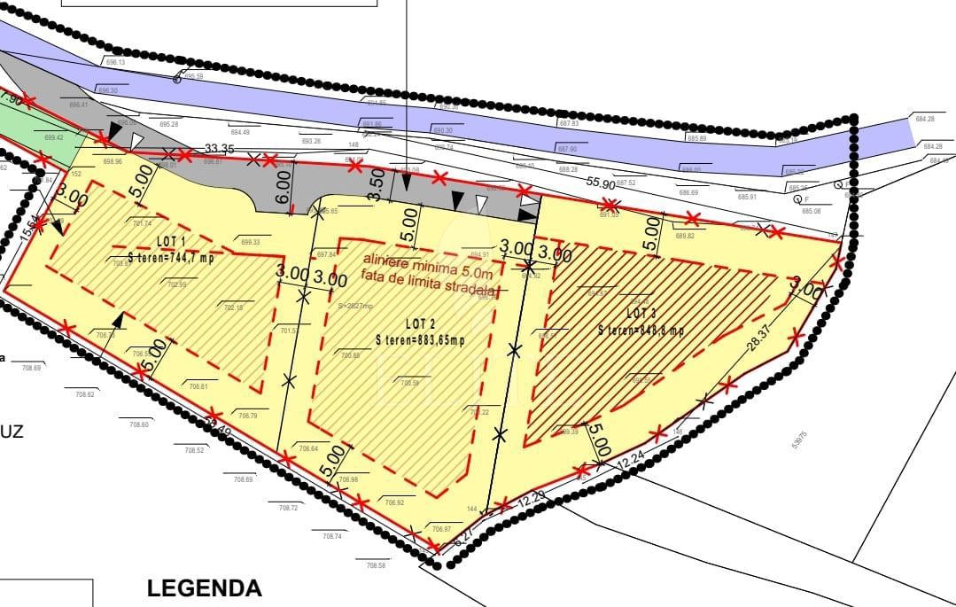
ELITE va ofera spre vanzare teren intravilan situat in zona partia de schi, Feleacu. Terenul rezidențial are o suprafata de 2800 mp cu front stradal de 50 ml, potrivit pentru constructie case. Acesul se face de pe drum public asfaltat. Exista certificat de urbanism si aviz de la Consiliul Judetean. Alte caracteristici: lungime 56m latime 50m. Un avantaj al acestei proprietati este ca dispune de: curent, apă, gaz la front. Urmeaza canalizarea. Are panorama superba asupra orasului. Se poate parcela. Are ca si vecinatati case.

Vă place această proprietate?

Vorbiți direct cu mine!

Hurducas Antoanela

Trimite un mesaj

Vă interesează această proprietate? Atunci trimite-ne un e-mail.

Oferte similare

Afișați proprietățile