ELITE IMOBILIARE

Prin utilizarea acestui site, sunteți de acord cu utilizarea cookie-urilor pentru analize, conținut personalizat și reclame.Aflați mai multe

Oferta nu mai este valabilă Vânzare

Apartament 3 camere în zona FABRICII

Cluj-Napoca, MARASTI (FABRICII)

ID: 114702

164.000

Caracteristici


3 Camere

Etaj 5/6

60 m2

1 Băi

subteran

Detalii

  • semidecomandat
  • Confort unic
  • Etaj 5/6
  • Număr balcoane 1
  • centrală proprie
  • semifinisat
  • ferestre termopan
  • ușă intrare metalica
  • izolatie exterioara

Descriere

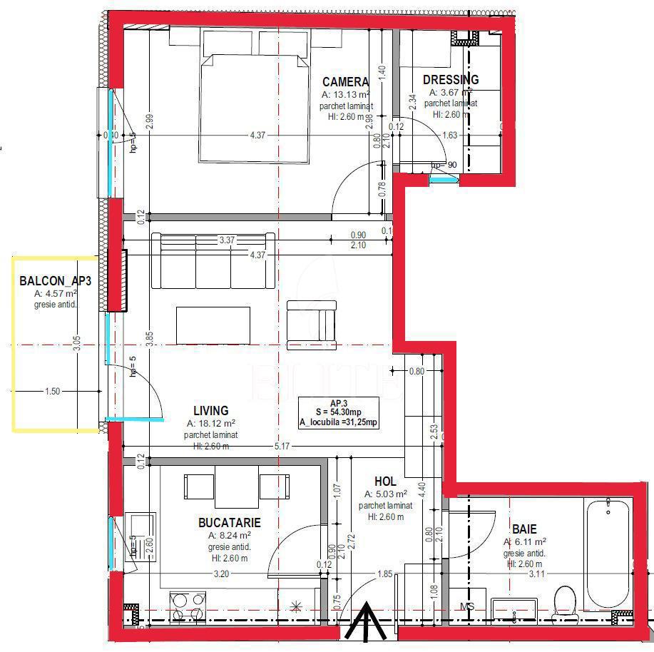
ELITE va ofera spre vanzare apartament cu 3 camere in construcție nouă, situat in cartierul MARASTI zona FABRICII. Apartamentul are o suprafata utila de 60 mp si este pozitionat la etajul 5, in bloc apartamente, construit in 2024, cu izolație exterioară. Este un apartament semidecomandat, confort unic, cu bucatarie open space, o baie, un balcon. In interior este semifinisat. Imobilul dispune si de centrală proprie,ferestre termopan,usa de intrare metalica. Un avantaj al acestui imobil este ca dispune de garaj subteran. Apartamentul este situat in constructie noua in zona Fabricii. Are cf individual. Este compartimentat in living impreuna cu bucataria open space plus doua dormitoare hol, baie si o terasa de 7,3 mp. Parcarea subterana este contra cost, respectiv suma de 15000 euro. Apartamentul se vinde la stadiul semifinisat.

Vă place această proprietate?

Vorbiți direct cu mine!

Seulean Simona

Trimite un mesaj

Vă interesează această proprietate? Atunci trimite-ne un e-mail.

Oferte similare

Afișați proprietățile